Hampton Multi-Functional Garden Room

Hampton, Surrey, Vantage

Luxury Millboard Clad Hampton Garden Room

This isn’t just a garden room,  it’s a fully bespoke build, crafted by the InFrame team with top-spec materials and sharp detail. 

Overview:

Range: Vantage

Location: Hampton

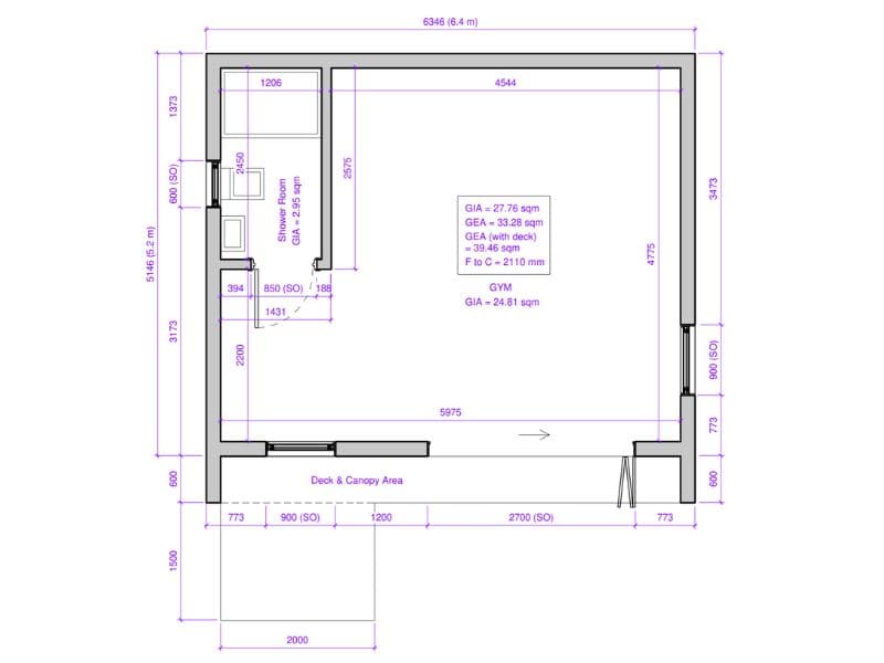
Size: 6.4m x 5.2m

Area: 33sqm

Use: Office, Gym Space, Kids Hangout

Client Brief:

Our client had been working from an old converted shed which was freezing in winter and sweltering in summer. It wasn’t just uncomfortable; it was impacting his productivity. He came to us looking for a dedicated workspace at home that would offer proper insulation, comfort, and a professional feel but he also wanted to make the most of the space for his whole family.

Rather than limit the room to just an office, he opted for a multi-functional layout. Alongside a sleek desk setup, we installed a wall-mounted TV and sofa, transforming the space into the perfect spot for family movie nights. His wife now uses the garden room as a home gym and is looking forward to inviting friends over to enjoy the space together – ideally with a drink in hand.

To make the garden room completely self-contained, we added a stylish shower room with bold black fittings throughout including : a black towel radiator, black shower and frame, paired with a white sink and toilet for contrast.

The result is a truly year-round space that’s transformed how this family uses their garden, from work to workouts to weekend downtime.

Specification

Design Visuals

CGI Design Visuals

Before the Build

From Draughty Shed to a luxury Year-Round Multi-Use Garden Room

Garden Room Studio in Hampton

This isn’t just a garden room, it’s a fully bespoke build, crafted by the InFrame team with top-spec materials and sharp detail.

All of our garden rooms are built on a precision-engineered steel frame, making them stronger, customisable, and built to last.

Looking for your own luxury space, get in touch today and start your journey.

design range

View our Garden Room design range

Vantage

Panoramic

bespoke

Contact us

Get in Contact

Send us your details and one of our friendly team will be in contact

Hampton Garden Room

A range of Pre-designed rooms & Bespoke Solutions

  • Our tried and tested InFrame range comes in a range of shapes and sizes
  • Wide portfolio of Offices, Gyms, Cinemas, Games Rooms and Bars
  • A large portion of our work is fully bespoke projects – anything is possible